面貼式止水帶技術
一、適用范圍:
新、老水工結構渡槽、建(構)筑物止水構造失效,無法將鑲嵌在結構內部的止水拆除后更換,在結構表面(迎水面或背水面)重新做面貼止水構造;
二、應用范例
1、箱涵面貼止水帶范例:
2、隧道面貼止水帶范例:
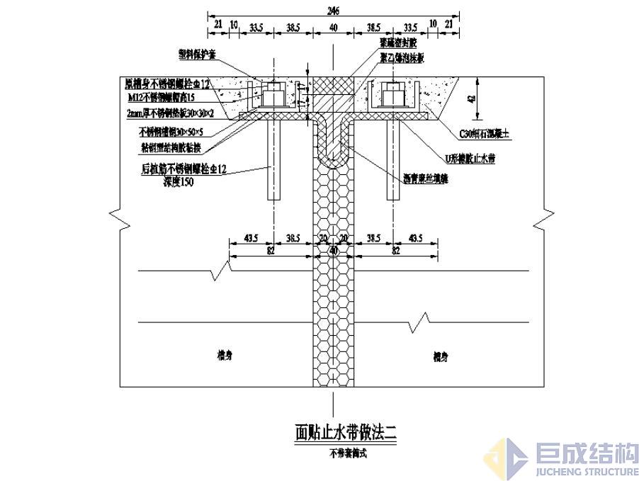
3、渡槽面貼止水帶范例:
三、施工工序:
1、箱涵、隧道面貼止水帶施工工藝:
1)將伸縮縫100mm深度內聚硫密封膏及聚苯乙烯硬質
泡沫板全部清理干凈,并對不規律沉降縫進行鑿除或修補,
保證伸縮縫達到寬20mm*深100mm尺寸要求;
2)沿伸縮縫兩邊25mm采用角磨機打磨平整,然后采用環氧砂漿
修平,在修復平整后基面上,涂刷一層界面劑,包括20mm寬聚
氨酯膠泥表面涂刷;
3)界面劑晾干后,往伸縮縫內填充50mm深遇水膨脹止水條;
外部50mm采用聚氨酯膠泥進行填塞,必須保證遇水膨脹止水條
與內壁部分縫隙內填塞飽滿;
4)錨栓安裝后對槽體清理干凈,再涂刷一次界面劑。
5)對鋼壓條及橡膠止水板進行定位放線,鉆孔。
6)安裝橡膠止水板,邊涂刷粘鋼膠邊將橡膠止水板壓在基面上。
7)密封處理,對于橡膠板與混凝土間隙處,擠出粘鋼膠的要將其抹平,沒有擠出粘鋼膠的,涂刷粘鋼膠,將橡膠止水板邊封住。
8)在已結構縫兩邊已安裝完成的止水帶及壓片、螺栓外側澆筑30
厚聚合物砂漿(內配鋼絲網)防護。
2、渡槽內壁面貼止水帶施工工藝:
1、渡槽面貼止水帶施工工藝:
1)切槽.
2)基面休整修整
3)不銹鋼螺栓安裝.
4)止水帶安裝。
5)止水帶壓板制作及安裝。
6)向凹槽內填充聚合物砂漿并養護。
7)結構縫兩側沿縫涂抹防護材料。
四、工程案例
箱涵、倒虹吸止水做法一 下載
箱涵、倒虹吸止水做法二 下載
箱涵面貼止水帶01 下載
箱涵面貼止水帶02 下載
渡槽止水帶做法01 下載
渡槽止水帶做法02 下載


